24 & 26 ft Lake Camp
Shantys

(click images for larger
views)
The Lake Camp shown was designed for
a client who currently has a fast boat at Lake Ozarks,
but is looking for a central location boat that can
be moored in the cove for the family.
The family and friends can use the
lake camp as an overnight camp, in addition to day
usage. While some family members are out water skiing,
the others can enjoy a relaxing stay in the cove.
At night the fast boat can be docked at the camp for
family barbequing and swimming.
The lake camp boat can be designed
to allow the top to be lowered for transport to far
off places. All the boats shown can be made 8’,
10’, or 12’ wide determined by the deck
plate size chosen. We are showing the boat as 11’
wide in the drawings.
Cost of the lake camp will be about
$5k if you build it yourself, $6.5k for the kit, and
$8k for the completed boat. Add a trailer and a 25
hp used outboard, and you have the boat, motor, and
trailer for less than $10k.
If you see a boat that tickles your
dream, let me know. We can discuss your ideas and
plans by email or phone. Harold Duffield oneuglyboat@hotmail.com
The 24’ and 26’ Shantys
can be assembled using 3 hulls for load capacity.

The 24 Shanty assembly is done as a
complete unit on top of the trailer and then transported
for launch. The Roof assembly shown is done from the
inside.

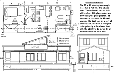
32 x 14 Live-Aboard Shanty

The 32 x 14 ft shanty gives more living
space for the boater who wants to live aboard full
time, yet will occasionally move the shanty from location
to location. The shanty can be equipped with an outboard
motor, or it can be pushed with a johnboat, or other
powerboat. While under-way the pilot looks thru the
open doors.
The boat as designed can be fabricated
in three sections, and then bolted together in the
water. It can also be lifted from the water for cleaning
and maintenance.
The loft area can be furnished as a
sleeping area for guests or children. Headroom in
the loft runs from 30” to 5’ 8”.
The loft roof folds down for lifting or for transport
on a truck.
The design calls for full insulation
in walls, ceiling, and floor, for comfort and economy.
The floatation of the boat can be aluminum
hulls as shown, or you may choose to use enclosed
dock floats if the boat is permanently moored.
The Kits for the Shantys can be quoted
only upon the final design chosen and the amount of
pre-fabrication required. Harold Duffield oneuglyboat.com

The 26’ – 36’ Shantys
can be fabricated in sections, and then assembled
in the water. This plan allows the boat to be put
together on top of a simple transport trailer in your
back yard. It does not require an offsite construction
location for the assembly process. If you purchase
the boat as a kit, it will take about two weekends
to assemble each section of the boat. The 26 x 14
shanty is designed as a live-aboard and has three
construction sections.
If you choose to have the components
fabricated in your area instead of purchasing a component
kit, we will work with your fabricator to make sure
the parts are properly made. Although the plans for
the boat are detailed, questions may arise while making
the parts. In that event, we will be glad to assist
your fabricator.

Floor panels for wider boats are aluminum
pans that are fully insulated for comfort and economy.
The floor pan arrangement can also be used on smaller
boats needing insulation. The floor panels attach
directly to the hulls or dock floats, and have an
interior ½” plywood sub-floor.
Harold Duffield
About the designer: Harold
Duffield - age 67 - grew up on the Mississippi River
- was whats known as a "river rat". He
has been messing about and building boats for over
50 yrs. Now he is offering plans and kits for fishing
boats, shantys, house boats and even sailboats in
aluminum as well as finished boats. https://www.oneuglyboat.com/

Other articles by Harold Duffield:

|