Cheap Skate Boat  
Design by Harold Duffield - Florissant, Missouri - USA
https://www.oneuglyboat.com/

So here’s the deal:

I grew up on the Mississippi River in Iowa. On the road to town was an old Boat Builder who always had a 14 ft John Boat sitting in his front yard with a “for sale” sign. The boat was a standard river boat of the area; Cross planked bottom with two boards on the sides. A real wooden boat, painted white and red with porch paint, and hammered caulked seams for water tightness It was a simple fishing boat for the river, and was not fancy, or sleek, or white knuckle fast with a 200 hp motor that couldn’t carry enough gas to get out of sight. . It was just a good row boat to bang around on the water. If you owned such a boat, when she wore out or fell apart, you bought another one. She’s probably good for 4 or 5 years of normal use. That’s how boats were used in those days.

The for sale sign said “$35” and each time my Dad drove down the road I always looked to see if the boat was still there. Over the years the boats for sale for $35 were constantly replaced, time after time, as customers bought them and used them up. I’m sure the old Builder didn’t make much money, but he did sell lots of boats during my childhood.

My question to you is, “can this simple concept still be used for those that are hopelessly infected with the cursed boat builder affliction? Can you still build and sell one small boat at a time by simply setting it in your front yard with a “for sale” sign, and with the price boldly inscribed?” Would anyone buy such a boat?

My answer is yes.: If the boat is well made, with a design that is desired for the area waters, and if the asking price reflects value and desirability, then I think the same simple concept would work in today’s boat selling markets.” You could add some zing to your marketing strategy by parking the boat at your local launch ramp on week-ends and summer holidays. This would give you a much greater exposure to your potential buyers. You could also work with your local Lodges and Churches, and let them raffle the boat off for charity. Your take would be your sales price, theirs would be the excess profit..

If there are Bass or Fishing Tournaments in your area, you could put the boat in the water and let the Fishermen take her for a ride in the evening when everyone has checked in and are waiting for the next day’s competition to begin. These tournaments also attract hundreds of “knot hole” Fishermen who are hanging around the area to be near the big guys. These ‘knot hole” Fishermen are great buying prospects, so let these guys take her for a spin too. Meanwhile, when not doing these clever sales activities, park her in the drive way, or at the donut shop, or the bait shop with a “for sale” sign.

But what kind of boat would work for such a clever build and sell plan?

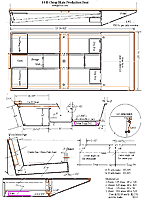
Here’s my idea and sketch plans for a boat to make and sell in your front yard. She can be 14 or 16 ft, depending on your pocketbook. She’s a hunk of boat for the dollar, and will be unbeatable as a fishing or duck hunting platform She has tons of storage space, and an above the waterline interior floor that is self draining. She is un-sinkable and un-swampable with over 700 lbs of floatation foam in the bottom and the bow area.

click to enlarge

Here’s my idea and sketch plans for a boat to make and sell in your front yard.

The boat is available to you in three stages:

Plans Only gives you the plans to build the boat and trailer yourself. You make arrangements on your end to do the parts fabrication and welding. This plan will work well for a fabrication shop who has the equipment and skills necessary to cut, bend, and weld the parts. You may also purchase the dimensional cut parts including the nose tanks.

Pre-Fabricated Components shipped to you ready to be welded together. The parts are pre-cut and bent and shipped to your shop for final welding. You then have the welding done on your end, or do it yourself if you have the equipment and skills. One advantage to this plan is a savings on shipping the pre-welded components. You may also purchase only the cut parts from us and then buy the un-cut components locally to save on packaging and shipping.

Complete pre-welded component package can be purchased with all the parts made and welded together. All you do is bolt the components together using hand held tools.

Each of the programs offered has advantages depending on your personal needs.

click to enlarge

14 foot Cheap Skate Production Boat

The construction is pretty straight forward. The most economical way to build her is to purchase a set of nose and stern flats from Uglyboat, and then have your local fab shop bend them up along with the other parts, and then weld the noses and sterns on. The flats are computer cut to shape and shipped as flat sheets ready to be bent. The cost of this outside labor should run you less than $800 for the work. Most fab shops charge $50-$60 per hour for their services. 12-15 hours should get the job done. If you don’t want to mess with the plan suggested, we can ship you the parts completely fabbed and welded. All you need to do is bolt the beast together. Your time required to get to this stage should be around 6-8 hours for the trailer, and 15 –20 hours for the boat.

click to enlarge

Aluminum Trailer Kit

The hulls require bending only, without having to be cut to dimension. The length and width of the boat can be anything you want depending on the bending capacity of your fab shop. Most shops have a 12 ft brake that can handle the bends required. There is a caveat however. You will need to bend 20 inches deep for the hulls. With a 12 ft brake you cannot bend 12 ft long and 20 inches deep because of the frame restrictions. A 12 ft bend will require a 14 ft brake. That is why the design shown is for a 14 ft boat. The hulls on the 14 ft boat are 10 ft long and can be bent on a 12 ft brake. If you want a longer boat, you will either have to section the hulls, or have a longer brake. Sectioning takes more time, and therefore more cost but does not effect the strength of the boat. If you section your hulls, plan on spending an additional $100- $200 for added labor for the longer boat.

Let me give you a rule of thumb for working on boats, including boat building, repair, or any item added or replaced on boats. That rule is: “if it takes one hour to do on a home or car, it will take two hours to do on a boat. If the boat is in the water, it will take three hours to do.” The multiplier can go as high as you want if you have fiends or neighbors watch while you work.

Once the boat and trailer are assembled, you can choose which deck arrangement you want. You can go with a pontoon boat deck with railings and seats, a bass boat arrangement with a center council, or even an overnighter with a sampan shelter for sun or weather protection.

One advantage the boat has is the versatility it offers. It can start with one usage and then be changed to any other as your needs change from season to season, or year to year. This feature should be very appealing to your customers if you make and sell the boats.

click to enlarge

Cheap Skate 14 Bass Boat

Harold Duffield

About the author: Harold Duffield - age 67 - grew up on the Mississippi River - was whats known as a "river rat". He has been messing about and building boats for over 50 yrs. Now he is offering plans and kits for fishing boats, shantys, house boats and even sailboats in aluminum as well as finished boats. https://www.oneuglyboat.com/

Other articles by Harold Duffield:

SAILS

EPOXY

GEAR