Combo Camper  
Design by Harold Duffield - Florissant, Missouri - USA
https://www.oneuglyboat.com/

The Combo-Camper is designed to carry your boat to the lake, and then folds out to become a very spacious camper at a nearby campground. It gives you the best of both worlds, and can carry your current or future boat up to 18 ft long. The unique features offered includes a rotating axle that lets you lower the camper to ground level for stable and easy access.

click to enlarge

The Combo-Camper is designed to carry your boat to the lake, and then fold out to become a very spacious camper at a nearby campground.

Features:
The combo-Camper trailer allows you to have both your boat and camper in one tow-able unit. It gives you a light weight package that can be towed with a light truck, van, or car, for long distances without worry. Then, when your adventure is done, the complete unit including the boat, the trailer, and the camper, can be stored in a single bay in your garage. This feature will be of significance to those who have zoning restrictions for parking boats and campers.

click to enlarge

When your adventure is done, the complete unit including the boat, the trailer, and the camper, can be stored in your garage.

Once the Combo-Camper is set up at you camp site, you will have all the comfort of a lakeside cabin, including air conditioning and a shower for Mamma and the Teens. No need to remind one of the need for these amenities for long time camping at the lake or river. If there is a lack of a plug in at your site, you can run your unit needs with a small electric generator. However, most campgrounds have hook-ups for electric and water.

click to enlarge

Once the Combo-Camper is set up at you camp site, you will have all the comfort of a lakeside cabin, including air conditioning and shower for Mamma and the Teens.

The floor plan shown is for a family of four. An extension to one of the bunks could be added in the event you wish to install a double bed.

There is a galley counter that is 42” wide with a drop leaf table providing seating for 4 The interior space in the unit is huge with 6’-8” head room.

click to enlarge

Setting Up should be about the same as setting up your camp with a family size tent.

Setting Up should be about the same as setting up your camp with a family size tent. The components for the structure can be transported inside the boat. The longest pieces will be the truss for the top, the tubing for the roof, and the fiberglass slats. These items are 12 ft long when rolled for transport. The set up will work best with 2 people, but one person can handle the job without worry. If your campsite has water and electric, you can install the shower and the air conditioner. A small lightweight air unit can be installed in the plans or kit.

click to enlarge

The Combo-Camper can be fabricated from a set of plans, or can be purchased as a kit that requires bolting the pre-fabricated and welded components together.

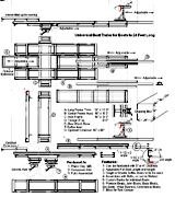
The Combo-Camper can be fabricated from a set of plans, or can be purchased as a kit that requires bolting the pre-fabricated and welded components together. You can also make the unit in different lengths and widths by adjusting the structure dimensions shown. Cost of plans is $300 including the trailer and all the camper drawings. The trailer plans included can handle boat up to 24 ft and weights up to 10k lbs.

Harold Duffield

About the designer: Harold Duffield - age 67 - grew up on the Mississippi River - was whats known as a "river rat". He has been messing about and building boats for over 50 yrs. Now he is offering plans and kits for fishing boats, shantys, house boats and even sailboats in aluminum as well as finished boats. https://www.oneuglyboat.com/

Other articles by Harold Duffield:

SAILS

EPOXY

GEAR