Google
 

January - February - March - April - May - June - July
August - September - October - November - December

Homemade Bronze Hardware

Chuck,

Here is a picture of the bronze stern light and boomkin mount we made for Pandion. This is 1/8 bronze sheet and 3/16 bronze sheet. The two tabs on the bottom are for the chain that attaches to the transom and the tab on the top is for the mizzen sail to sheet to.

Here's the latest addition to the boat. Hatch hinges fabricated from 1/8 inch bronze - not buffed yet - all the bronze will be buffed to high polish.

David Nichols

Editor's note: David is working on a book that will show you how to make similar hardware for you boat using bronze scraps and a simple gas welding rig.

Caprice finishes the Texas200

click images for larger views

I never got around to sending these photos from the Messabout in June. These show you and the caprice finishing the Texas 200. Sorry for the delay.

Stan Roberts

A Modern Parable

A Japanese company (Toyota) and an American company (GMC) decided to have a canoe race on the Missouri River. Both teams practiced long and hard to reach their peak performance before the race.

On the big day, the Japanese won by a mile.

The Americans, very discouraged and depressed, decided to investigate the reason for the crushing defeat. A management team made up of senior management was formed to investigate and recommend appropriate action. Their conclusion was the Japanese had 8 people rowing and 1 person steering, while the American team had 7 people steering and 2 people rowing.

Feeling a deeper study was in order, American management hired a consulting company and paid them a large amount of money for a second opinion. They advised, of course, that too many people were steering the boat, while not enough people were rowing.

Not sure of how to utilize that information, but wanting to prevent another loss to the Japanese, the rowing team's management structure was totally reorganized to 4 steering supervisors, 2 area steering superintendents and 1 assistant superintendent steering manager. They also implemented a new performance system that would give the 2 people rowing the boat greater incentive to work harder. It was called the 'Rowing Team Quality First Program,' with meetings, dinners and free pens for the rowers. There was discussion of getting new paddles, canoes and other equipment, extra vacation days for practices and bonuses. The pension program was trimmed to 'equal the competition' and some of the resultant savings were channeled into morale-boosting programs and teamwork posters.

The next year the Japanese won by two miles.

Humiliated, the American management laid off one rower, halted development of a new canoe, sold all the paddles, and canceled all capital investments for new equipment. The money saved was distributed to the Senior Executives as bonuses.

The next year, try as he might, the lone designated rower was unable to even finish the race (having no paddles) so he was laid off for unacceptable performance, all canoe equipment was sold and the next year's racing team was out-sourced to India.

Sadly, the End.

submitted by Allston Crawford

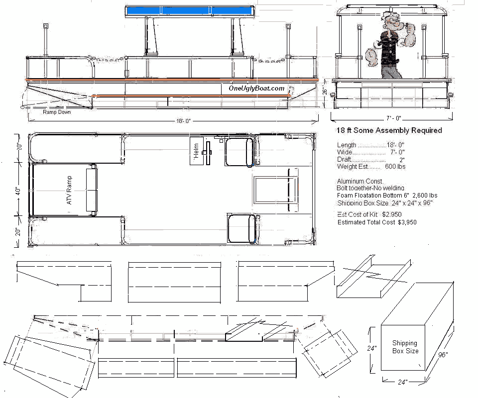
Bolt-Together Boat

Chuck, here is a bolt together boat in a box. It should sell well in the non-profit market for shippable boats. It is designed to be bolted together with no welding. it uses the float pod concept previously described. Harold Duffield - oneuglyboat.com -


click image for larger view

Features:

  1. All aluminum Hull construction using .either 100 or .125 aluminum marine plate.
  2. Positive foam floatation giving over 2,600 lbs of floatation
  3. Shipped to you in a box measuring 2 ft x 2 ft x 8 ft. Designed to be bolted together.
  4. Boat draws less than 3 inches of water allowing access to any shallow areas.
  5. Can be rigged with shade for mamma and an enclosed toilet facility for comfort.
  6. Boat costs less than 1/3 the cost of a comparable boat.
  7. Weight of boat is less than 600 lbs  making it tow-able by any compact car
  8. Length and width can be adjusted to fit your special needs. Example: boat could be 7 ft wide and 18 ft long, or it could be 10 ft wide by 20 ft long.
  9. The boat and trailer can be purchased as plans or as a bolt together kit.

Go to OneUglyBoat.com  for details or email  oneuglyboat@hotmail.com    

2009 Eastern Messabout

This is an early announcement about the upcoming 2009 Eastern Messabout to be held at The Hawk Island Marina in Delanco NJ, June 26,27,&28.

The facilities are wonderful; camping onsite, transient slips, showers, restrooms, snackbar, ship's store,and boat ramp. There are motels and restaurants within easy driving distance and easy access to the Delaware River by boat. The area is great for paddling, sailing, and motoring.

We had a great time in 2008 (see for the Duckworks article) and look forward to new adventures in 2009. Plan to attend. Go to the website for more info and to register. https://www.geocities.com/sneakeasykatie/

I will be sending more details and other announcements in the weeks ahead.
Hope to see you there!

Steve Bosquette

Hi Chuck,

Thanks for setting up a website for the Florida 120 on the Texas 200 website. For those who might have not heard of the Florida 120, it is a four day 120 mile round-trip sailing challenge on the Florida Panhandle. It takes place from May 14th to 17th with sailing legs of up to 38 miles in shetlered waters. We will be beach camping on the soft sugar-white sands and cruising on the clear turquois waters. For a google earth overview of the route visit: https://texas200.com/florida120-revised.kmz.

The level of the challenge can vary based upon which of the four classes you choice. Class 1 is no motor on boat, class 2 is motor contingency (use only when safety dictates), class 3 is limited motor (use when leaving anchorages), and class 4 unlimited motor. Folks in the class 4 deserve special recognition as the safety boats for the rest of us! Class 1 boats may qualify for inclusion in the Oar Club as well (see: https://www.oarclub.org/).

One other note for all interested, please check into the forum and sign up your intent to go. I will be making plaques free for everyone who participates but only if you have indicated your intent to go. Also, Pirates Cove has limited parking so I may have to arrange some elsewhere depending on numbers. This is a pay as you go event so come prepared to pay a few bucks for launching and dock fees if needed.

Thanks again Chuck!

Scott

To comment on Duckworks articles, please visit our forum




  sails
  plans
  epoxy
  rope/line
  hardware
  canoe/Kayak
  sailmaking
  materials
  models
  media
  tools
  gear