March Reports  

By Duckworks Readers - all over the place

January - February

Woobo Model

click to enlarge

Received my order thanks for the prompt service. At 7 below I didn't even try to warm up my shop but I did manage to build the model of the WooBo. At some later date may even add a radio but it'll need lots of lead.

Steve Fisher

Boat Cover

Hi Chuck and Sandra,
What a coincidence that you just printed an article on sewing just as I was finishing up a cover for the troutboat! I used nine yards of dark green Sunbrella for the fabric, a $66 (on sale) bottom of the line plastic Brother sewing machine, a denim needle, and a commercial spool of awning thread that I had set on the table behind the machine because it would not fit the thread holder.

click to enlarge

click to enlarge

Of course the equipment was way below any reasonable standards. In fact, the only way it would sew was to line up everthing and gun it - anything less than full throttle and it would bog down or jam. I think I tangled stuff up twenty or thirty times. But it sewed and it sure beat spending hours and hours trying to push a needle through that Sunbrella stuff by hand!

click to enlarge

click to enlarge

I did get a estimate to have a pro sew the cover for me - it was $250 bottom and up if it took longer than expected. I figured for $250 I could read a sewing maching manual and figure things out enough to make a pasing cover - and I guess I did. It is clearly homemade - but then so is the boat so they match just fine. I recon the bottom line is - go for it with what you have.

Larry Pullon

Hi Duckworks

My oarlocks arrived today. What fantastic service! Thanks very much, the Douglas oarlocks look great, and fit well. Now to reshape the oars so that they are square under the leathers.

Here is a picture of my Saint Lawrence Skiff. It is a great rowing boat.

Regards John Hitchcock

A Blast from the Past

click to enlarge

click to enlarge

Hey,

These pictures were taken by Bob George circa 1978 at the entrance channel to Tarpon Springs, Fl. Katie and I [on our 26' Cross tri] were getting in from a 48 hr. offshore passage from Carrabelle, Fl. It was blowing hard and cold from the S. E. in preparation for a mean cold front. Our little tri, while severely overloaded, was sailing along at a good clip. We wound up spending close to a year aboard and sailing from Kemah to the Bahamas and back. Bob sent us these pictures three days ago--28 years later.

Lee Martin

The coolest model I ever saw...

...was made by my friend Dennis. We met last summer at an informal messabout. Four of us got together to row on a local lake - I guess that is a messabout. Anyway, Dennis had just bought a Slam Dink from Bob Williams - who cant seem to stop building boats - and he was having a ball rowing it all around. Later we compared notes and you could see the wheels in Dennis' head as he realized that people can actually build boats in their own garages.

click to enlarge

click to enlarge

We got together several times over the next few months and I found that although Dennis had never built any boats, he was very creative and had built all kinds of stuff from furniture to movie props to some really cool kiosks. Then one day he showed up at my house with this model. I was pretty amazed and could not wait for him to start building the real thing, hoping to be able to help a little if he needed it.

click to enlarge

click to enlarge

Then about a week ago, Dennis' wife, Bobbie came by the shop and told us that Dennis had died. We were floored. He was just here. We were just talking about my current project and his houseboat to be. He was so excited. Now he is gone.

Chuck Leinweber

Popcorn

I was wondering how to calculate the volume of a section of my under-construction Melonseed that I was thinking about closing off for flotation. I didn't have Ping-Pong balls or Styrofoam 'peanuts' but then realized I had popcorn and a hot air popper. I partitioned off the area in question and used a half gallon container as a volume measure to fill the section to be studied. I used the heat from the popper to help warm the workshop and cleaned up afterward with my shop vac. An internet site told me that a gallon is equivalent to 0.1337 cubic feet. Voila!

Steve Lansdowne

Unusual Grafitti

https://www.thepuzzlefactory.com/2006_chalk.htm

Look at the third picture down(seen above). Amazing - Aaron Edelman

Tennessee Update

Chuck, Hi. I'm once again diligently pursuing the goal of a summer launch of my "Tennessee", tentatively known as "The Big Lebowski".
Enclosed are some photos for your perusal.

click to enlarge

I must apologize for disappearing after you kindly published the first installment of "The Moaning Chair". Another spinal surgery and the ensuing problems. Actually I'm going to hospital next week for another procedure on the back. Not as radical this time. I hope.

Anyway, the process of boat building has been the best therapy. Something to do and always to think about. Modifications at this point have been; 1/2" ply thru out. Birdwatcher type slot in cabin top so I don't have to bend as much. Cockpit seats in back half only to maintain dancing room. Any suggestion you may have on HP would be appreciated. Given the added weight of the ply and epoxy....? I'll pen you a note during recuperation. Thanks for supplying all the reading material. Hi to the bride.

ciao, Ed Einhorn

Dear Chuck

I can't believe I didn't know about your excellent magazine!! I was about to pony up the subscription when I realized it was online only and free!! I am a longtime Internet guy (And VNET before it existed) and I'm really happy to see this excellent example of the power of human communications and ideas..

I have built two inboard power boats from framekits, and done all the engine and drivetrain design and install, mostly homebrew (as the Ham Radio guys say). I mean like building motor mounts, exhaust manifolds, driveshafts etc.. I'll attach a photo of the recent (only
28 years old) :-) one...

In August (After a Summer on Lake Champlain with my Boat, Wife, Dog, and Grandchildren...) I will be moving to China for 3 years!

As my favorite Winnie-The-The-Pooh quote goes, "There has been an alarming increase in the things I know nothing about" !

I'm researching "boats in Southern China in the present day", with an aim of acquiring a boat that I can work on (a favorite pastime) and run / sail.. At some time in the future I will have a story to tell about that...

Regards, Terry King ...On The Mediterranean in Carthage, Tunisia

Little Laker Progress

Chuck,
Murray Taylor, in New Zealand, sent these photos of Little Laker (the 14'6" car topper power boat and Lutra Laker's little sister) with her garboard in place and ready for the fiber glass tale and fiber glass cloth.
Thanks,
David Nichols

click to enlarge click to enlarge
click to enlarge

click to enlarge

Sweet Pea Sailing

Hi Chuck
How long have I waiting for these photos. Finally I have had a proper sail. My Sweet Pea performed well but the owner has lots to learn.

I can see I need to straighten the mast a bit but have turnbuckles in place to allow for this. Probably all right until I cranked on the mainsheet.

click to enlarge

click to enlarge

Conditions were a bit choppy when we first went out. The boat feels nice and stable with or without the centreboard down.

Then things settled down and the breeze picked and then we were sailing just as I have been dreaming of for a while now.

The sails filled nicely and took on the requires shape.

click to enlarge

 

Things looked pretty good from where I was and I have received plenty of complements from onlookers. No doubt much of this is due to the beaut sails made by you. They certainly contribute greatly to the character of this little boat.

So my Sweet Pea continues to be everything I hoped for.

When the season changes down here I will think about putting together a story for you.

Cheers Simon Hull

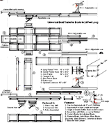
Trailer

Once your boat is built you need to get it to the water. Which means you will need to buy or build a trailer. The universal trailer plan shown should give you a very strong and easily made trailer for that purpose. It can be built in steel or aluminum. For those who plan on using steel, the scantlings could be reduced for lighter weight boats. However, the difference in cost isn’t that great, so I suggest you use the heavier metal shown in the event you want to sell the trailer, or if you get a bigger boat in the future.

click to enlargeOnce the trailer is made, the bunks to support the boat will need to be added. For flat bottom boats, a simple set of wood runners can be installed with side braces to keep the boat centered will be adequate. For pontoon boats, you will need to add cross tube frames to support the tanks. If your boat has a V bottom, you can use high longitudinal runners for slight V’s or custom cut cross frames formed to fit the shape of deep V’s.

The trailer is designed to be adjustable for different length boat, and can also be adjustable for different width boats by adjusting the width of the trusses and the Torflex axels. Cost of the plans is $45 including bunk designs for different shape boats. Torflex axels can be ordered from uglyboat suppliers for less than $200 each. Kits are also available if you do not want to build the trailer yourself.

Harold Duffield - https://www.oneuglyboat.com/

Contact: Lucy McKernan
Radius Communication
216-328-1155


Rust May Never Sleep, But B’laster’s Corrosion Stop Never Quits!

Inhibitor/Protectant a Major Contender for Numerous Applications

VALLEY VIEW, OH—Corrosion Stop, (Part No. 16-CST) is B’laster Chemical Companies’ water-resistant spray corrosion inhibitor/protectant that saves tenfold what you might pay later. That’s because multi-tasker Corrosion Stop penetrates, resists water, displaces moisture, prevents further corrosion, creates a protective barrier and simplifies future maintenance. It’s also just right for winterization.

Corrosion Stop also fights corrosion, salt water and atmospheric salt and chemicals.

Specifically designed for use in the industrial, automotive and marine parts and equipment industries, Corrosion Stop is great for anything that rusts or is exposed to a corrosive environment, such as stored automotive frames, parts stored over long periods, boat trailers and bilge pumps, fishing reels, boat rigging, live bait wells, hooks and tackle, wheel bearings, outdoor speakers and bike chains and cogs.
Corrosion Stop is also perfect for engine blocks, cooling fans, electrical connectors, lug nuts and use after engine repairs and rebuilds. Use Corrosion Stop on batteries, trim-pumps, water pumps, exhaust manifolds, antique equipment, locks and padlocks.

Corrosion Stop and other B’laster products are produced and packaged in the United States. Corrosion Stop is available in an 11-ounce aerosol can, with an average retail cost of $3.79.

Founded in 1957, B’laster Chemical Companies, Inc. is a leading manufacturer of a complete and emerging line of high performance penetrants, lubricants, rust inhibitors and specialized highly concentrated formulas used in home, industrial, automotive service, marine, and heavy-duty truck applications. The company’s flagship product, PB B’laster, has earned a reputation as the fastest, most effective penetrant, lubricant and rust inhibitor in the market. It was the introduction of precedent-setting PB in 1959 that clinched the company’s future. Nothing works faster than B’laster! B’laster Chemical Companies is located at 8500 Sweet Valley Drive, Valley View, OH. For more information, call (800) 858-6605 or visit our Web site at www.blasterchemical.com

THE PIRATE CALENDARGHHHH!
2007 Pirate Calendar Celebrates Golden Age of Piracy

SOMEWHERE AT SEA -- Since Robert Louis Stevenson first introduced us to his cutthroat crew aboard the Hispaniola, there have been many attempts to illustrate bloodthirsty pirates of old.

Now, with Hollywood backing the pirate lifestyle, Johnny Depp has set the benchmark for piracy at an all-time high, and piracy prevails on a number of artistic levels.

Everywhere you turn there are pirate clubs, pirate movies, pirate posters, Talk Like a Pirate Days, and the skull and crossbones has become a seagoing icon of the 21st century.

Artist Don Maitz has long been considered the premier pirate artist of this popular genre, and his 2007 pirate calendar has just hit the streets.

Don's art has had a cult following for a quarter century, but his career went mainstream when his artwork was selected in 1982 to internationally illustrate millions of bottles of Captain Morgan Spiced Rum.

Last year his pirate calendar sold out as soon as it hit the stands. This year he has countered with an even more spectacular calendar, again featuring his classically portrayed pirates in full color.

This year's pirate calendar offers swashbucklers of both sexes and includes some of his more celebrated works, such as Blackbeard, Captain Kidd, and Raging at the Moon.

Maitz' artwork has been sought after by collectors for years. He symbolizes a long line of seagoing artists that include N.C. Wyeth and Howard Pyle. His work has been compared to the Hildebrant Brothers (of 1970s Tolkien fame). But in reality he could be more accurately described as "Hildebrants with a sense of humor."

His subjects, often inspired by people he meets in his travels, contain the realistic depth and feel of a Hildebrant work, but with a twist of fate, or humor -- such as the delightful and toothless Pirate Gunner, or his pathetic, battle-ravaged Pegleg.

What a breath of fresh air Maitz' work is. This second calendar promises to be followed by a third in 2008. The calendars would probably make an elegant and unique addition to any office, den, or bulkhead.

The calendar features cycles of the moon, all National holidays, and notations of pirate history such as the date Blackbeard sacked and burned the Protestant Caesar.

Each month offers a thumbnail of a work in progress at the bottom of the page, which may give the artist's followers a glimpse of what's to come. And everyone seems to enjoy searching for the artist's signature, buried somewhere in each of his paintings.

The calendar will appeal to all children, from eight-to-80, and if this calendar is anywhere near as successful as the Hildebrant Brothers' calendars, they will be around for a long time yet to come (a Hildebrant recently sold for $300 at a comic convention).

The artist and his work have been featured in National Geographic, on the History Channel, and Dateline NBC. He has been saluted in museums from coast to coast, and we will, no doubt, be seeing more of him as the popularity of pirates seems to show no sign of letting up.

"Pirates!" the calendar sells for $13.95 in the US and $16.95 in Canada. European buyers must pay with a check on a US bank or by credit card. The calendar is published by Tide-Mark Press and can be purchased on their website at www.tidemarkpress.com, or by writing Tide-Mark Press, P.O. Box 20, Windsor, CT 06095-0020.

For more information on artist Don Maitz and his current projects and exhibitions visit www.paravia.com/DonMaitz.

-- Joe Ditler

SAILS

EPOXY

GEAR