|
|
 |
|
|
Clamp Math
by Barrett Faneuf
Today we do a math problem.
Given:
Laminating any boat widget of periphery length (x). Width of given widget is (y). Number of laminations is (z) where z is a positive integer greater than or equal to 2. Laminating adhesive is epoxy at outdoor temperature. You have (a) number of spring clamps, (b) number of bar clamps, (c) number scavenged and recycled “what the heck is this?” clamps.
Question:
How many clamps are needed to complete a given lamination?
(Answer below photos)

"I am laminating the coaming stringers out of 2 strips of 10x20 mm doug fir left over from the spars. I gave the strips a cheap "steaming" - wrapped in towels and doused in boiling water. Here they are sprun into place and clamped till dry." - From Barrett's photo album
Answer: All of them, of course.
|

Fish Story
A guy who lives at Lake Conroe (50 miles north of Houston) saw a ball bouncing around kind of strangely in the lake and went to investigate.
It turned out to be a flathead catfish who had obviously tried to swallow a basketball which became stuck in its mouth!!
The fish was totally exhausted from trying to dive, but unable to because the ball would always bring him back up to the surface. The guy tried numerous times to get the ball out, but was unsuccessful. He finally had his wife cut the ball in order to deflate it and release the hungry catfish.
You probably wouldn't have believed this, if you hadn't seen the following pictures...
Be kinder than necessary. Cause everyone you meet is fighting some kind of battle.
Hiya Chuck... don't know if this is for real or not, but looks convincing to me...sent to me by a former student who is now a Chief Warrent Officer in the Coast Guard,stationed here in Galveston... thought you might find it interesting... Tyson McLeod
|
 |
|

What a huge trophy! That's going to hold a LOT of beer!
|
| |
|
Hi there - we have just read John Wellsford's article to your website and thought we would send you another picture of the model made to replace the original "Ddraigg" which was the first Navigator of John's design to be built (by previous owner) and has now returned to sail Auckland waters once more!

This "mini-Ddraigg" has undergone some modifications and now sails extremely well on local pond and lake when light conditions prevail - she also has a small outboard motor which runs on 2AA batteries and pushes her along quite nicely!
The photo shows the bay at Plimmerton with a few other of the craft which participated in the event in March.
Regards, Frank and Gwynne Tilly
|
| |
|
Gumby

Daryl Boyington, center, Toby Day, left, and Larry Doucette, paddle in the rain at the start of the 40th annual Kenduskeag Stream Canoe Race, Saturday, April 15, 2006, in Kenduskeag, Maine. This was the 21st year the Gumby team – AP photo - submitted by Paul Butler
Addendum - Nov. 2012:
Dear Chuck,
The caption below the Gumby Boat photo listed on your website is missing a name for a paddle. Dan Pelletier is the owner of the wooden paddle running up the rear of the canoe, doing the steering. He is owner operator of a Maine-based canoe guiding business, cares for Gumby year after year and orchestrates the event annually. That is actually the same Gumby that ran the first voyage and now need to be pumped, almost continuously, to keep him up through the entire race. I am the Gumby Guy's girlfriend, which is how I know all of this. I am working on a blog and new website for his business, MaineGuiding, and would be happy to link to your page within our business' blog if you could please make the appropriate changes to the caption as stated.
Thanks for your time, have a good one!
Miss Amanda-Jo Emerson |
| |
|

...maybe there is some wisdom to the approach illustrated here; concrete foundations seem to be a none starter in New Orleans...but you can tell they need the help of the wooden boat building community if they think having doors in the bilges will work! I wonder if it would cost less to build a bunch of Phil Bolger's 63 foot long "Illinois" sharpie cruisers than to replace the houses? - Jack Panter
|
| |
|
Hello,
This is our marina in Hout Bay Harbour,the pic was taken by Janet our daughter from what is her office, its where the charter boat she works for docks.

Hout Bay is at the back of Table Mountain.
TheEndurance 37 I took off the rocks (oil change story) is in the center of the picture,a maroon transom with no name on it....the boat was repainted,it is called Ocean Cloud.I did a marine survey on the boat two weeks back,the boats fine and its been sold again.
Roy McBride - CKD Boats |
| |

|
| |
|
Robot goes fishing for signs of global warming
By Gregory Mone
(Popular Science)
This month, a slow-swimming robot known as Spray will attempt to glide roughly 2,484 nautical miles across the Atlantic, from the southern tip of Greenland to the coast of Spain.
An autonomous underwater vehicle, or AUV, Spray is a joint venture between the Woods Hole Oceanographic Institution in Massachusetts and the Scripps Institution of Oceanography in California.
When deployed, it will act as an aquatic sentinel, gathering data on temperature, currents and salinity that will help scientists better understand the role of oceans in regulating the global climate.
The main point of the Greenland-Spain run is to test its endurance -- if successful, the robot will break its own record of 1,864 nautical miles for the longest distance ever traveled by an AUV.
But the big goal, which researchers hope to meet by 2011, is to deploy hundreds of these gliders worldwide, giving scientists a constant telepresence in the ocean.
Here is how Spray works:
Propulsion: The 6.5-foot-long winged glider has no propellers. Instead it generates lift as it dives up and down. A computer controls the angle of its dive by shifting one of three battery packs. (For a sharper dive, the pack shifts toward the nose.)
Diving: Scientists predetermine the dive's depth, which can extend to 1,000 meters. When Spray reaches the low point, it pumps oil from a bladder in its watertight hull to another bladder in its water-filled tail. This pushes water out of the craft and makes it rise.
Sensors: Spray's instruments measure temperature and salinity. Scientists will also learn about currents by monitoring how far the glider deviates from its predicted path. Eventually, they would like to add to the instrument suite, enabling it to measure oxygen content, nutrient levels and more.
Communications: On the surface, Spray rolls to one side, and a GPS antenna embedded in the wingtip records its position. Then it rolls again, and an antenna in the other wingtip relays the new position and scientific data using a satellite phone system.
Guidance: Scientists receive regular e-mail updates on Spray's progress. If it's off course, they can send new target points, which Spray will receive by antenna the next time it surfaces. During the early tests, scientists monitored the AUV for several hours a day. Now they just check their e-mail occasionally.
|
| |
|

Hey,
Katie's shop classes pay off. It's black starboard bought off the net cheap [well not that expensive anyway].
Lee Martin
|
| |
|
Leak ends American's solo ocean rowing bid
DAKAR, Senegal (AP) -- A planned solo row from Africa to New York turned into a one-day washout for an American man whose homemade boat sprung a leak just hours after he set out from the Senegal coast Sunday.
Victor Mooney radioed for help after he saw water coming from underneath his boat, according to a press release on his Web site. He was rescued by the Senegalese navy, but the 24-foot (more than 7-meter) ocean rowboat he built for the journey sank.
Mooney -- a 41-year-old college publicist who had been preparing for the trip for three years -- could not immediately be reached. The press release said he will return to his home in New York later this week.
Local authorities said Mooney was not hurt, but did not sound likely to try the trip again.
"He said 'Never. It's finished.' " said Motor Diop Kane, of Senegal's military police.
Mooney had hoped to become the first African-American to row solo across the Atlantic, while also raising awareness about AIDS issues in Africa and memorializing the route that took African slaves to the Americas.
Africans "went through slavery and now they're going through AIDS and being devastated again," Mooney -- who lost a brother to the disease -- said before setting off. He departed just after 9 a.m. from an island off the coast of Dakar that was once a major slave port. Kane said the navy was called in to help him less than two hours after the launch.
Fewer than 50 people have completed solo rows across the Atlantic Ocean, according to the England-based Ocean Rowing Society. Four have been lost at sea in the attempt and nearly 40 have had to abandon their trips, according to the group.
"Most of them abandoned the trip in the first week, or the first days," said Tatiana Ryezva-Crutchlow, editor of the group's Web site. She said most who abort their journeys do so not because of an accident, but because they realize the months-long row "is not what they were looking for, or what they imagine."
Mooney had said he was the first to attempt the trip from Africa. If the trip had gone as planned he would have reached the Caribbean in 120 days then rowed up the coast to reach New York around October.
His launch was delayed for nearly a month in Senegal to fix a keel broken by fishermen who tried to move his boat by rolling it on logs. The press release did not say if this keel was the source of the leak.
|
| |
|

Announcing the largest and most comprehensive Boating and Outdoor Recreation Resource on the Internet!
Contact:
Fred Henley
(972) 924-4998
admin@comp.com
Investaclick, LLC proudly announces the release of it's Compuboat.com website. The site went active just in time to kick off the Miami International Boat Show and has since begun to revolutionalize the way boating enthusiasts are able to access information that is directly related to boating and outdoor recreation.
Investaclick has compiled pertinent boating and outdoor information into a site that is void of unnecessary clutter that adorns most websites such as overpopulated and overbearing banner ads. Over the previous 9 months Investaclick has collected information on over 1 million boating related businesses and created complimentary listings on the site for each of these companies with the end user in mind. The site navigates with ease using Google’s API mapping technology. According to Google " Compuboat best demonstrates the use of our API Mapping Tecnology on the web". Google has even gone as far as to highlight Compuboat.com in tech support sites as an example for prospective users of their technology to follow.
The amount of boating and outdoor recreation information that Compuboat.com is able to convey is astounding. A complete list of boater’s needs can be found simply by logging onto the site and choosing a lake or waterway you would like to enjoy. Marinas, boat repair, lodging, entertainment, charter services, and fishing guides are a few of the categories that are not only listed, but are mapped for the convenience of boaters. Along with the businesses and services listed is a complete list of boating laws by state, marine terms, water hazards, up to date weather, and an explanation of maritime signage. The United States Coast Guard says "Compuboat.com is a site every boater should review before heading out to their favorite lake or waterway”, and the U.S. Army Corps of Engineers says “Compuboat.com is a must for any outdoor enthusiast”.
Compuboat.com has received critical acclaim from companies such as Google and organizations like the United States Coast Guard and the U.S. Corps of Engineers, but the millions of boaters that visit the site monthly remains their focus. Darren Odden, one of the Investaclick partners says "Compuboat is a site created by boaters, for boaters, and for the promotion of safe and fun boating experiences for everyone. The boaters will remain the focus of this site”.
|
| |
2006 Michigan Week Cup
– Vintage Sailboat Regatta –

|
| |
|
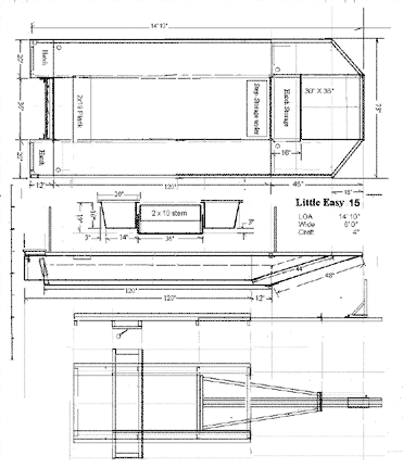
The Little Easy
The Little Easy is designed to be truly a boat in a box. Both the boat and trailer come
ready to assemble, and packaged in a single box. . All you do is open the box, bolt the
trailer together, and then assemble the boat on top of the trailer.

click image above for larger view
Although the boat is only 15 ft long, it is one tough bull-strong boat that gives you great
stability for fishing, duck hunting, or family boating fun. It is unsinkable with the foam
filled side hulls. Because of the light weight, it should tow like a dream behind any small
compact car or pick up.
It is small enough to go in your garage, yet has great storage room for fishing gear,
hunting equipment, or family life jackets and floats. It should make an ideal “Roadee”
second boat for those that have a larger boat, but don’t want to pull it to far off places to
vacation, fish, or hunt. Instead, they can leave the big one home, and still go with small.
For more information, visit https://www.oneuglyboat.com/
|
| |
|
|
|
|
|
|