Aluminum Shantys
click "comment" to read or make an observation about this  article - click "email" to send this page to a friend
designs by Harold Duffield - Florissant, Missouri - USA

For more information, visit:
https://www.oneuglyboat.com/

It’s fun to dream about living on the water and enjoying the benefits offered to your life style and interests. Now with the cost of housing, real estate taxes, and heating and cooling, it may be the right time to think about it in economic terms as well. A “have your cake, and eat it too” kind of moment.

After a suggestion from one of our prospective customers in Louisiana, and with his living on a Shanty idea in mind we let our imagination run wild (a thing that happens a lot around here). We’ve decided to design what we consider some “just right” boats for on, or near the water living. The Shantys are all affordable, and doable, for the average Joe, or in this case Ted.

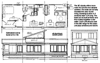
click to enlarge

24 ft Lake Camp Shanty

(click thmunails for larger views)

The Shantys shown could be built on a paycheck basis in increments over a period of time, without having to borrow a lot of money. Or, you could mortgage the ol homestead and make a no-lose damn good investment. (it’s always easier to convince your wife if you call your dream a, “no-lose damn good investment”) .

The Shantys are designed to have 100% aluminum construction, including the floor and roof. They are also designed to be fully insulated for full time live aboard comfort and energy saving. The designs feature easy assembly by anyone with basic tool handling skills. All components are light weight, and will not require lifting equipment for final assembly.

The Shantys can be made with or without lofts. The loft will add a substantial amount of space for children, but the cost will be increased by about $2k if you include a loft.

26 foot Shanty

click to enlarge

We are showing the boats from 11 ft wide to 16 ft wide, but both the length and the width could be adjusted for your needs. They can all be built with a drop down front and back deck that can be raised during any transport. If you have a special floor plan you want, we can also do that for you. The floats for the shantys can be either aluminum hull tanks, or standard plastic foam enclosed dock floats. The floats chosen will be determined by the anticipated usage and cost..

You will not need an off-site construction location for assembly. The Shanty can be built in your back yard, in sections on top of a simple inexpensive transport trailer. Then, the sections are launched and bolted together in the water. The construction sections shown are from 8-10 ft for the 26 ft boat, and 10-12 ft for the larger boats. The transport trailer is a simple flat trailer 8 ft wide and 14-16 ft long, depending on the width of your shanty.


Final finish including rail cap, interior trim boards, and motor
mount, are installed to complete the basic boat platform
construction. Then, depending on what model you have
chosen, you can complete the boat of your choice.

The Shantys can be designed to be used as a permanent home. With the excessively high cost of housing in many areas, you could easily save $12-14k yearly on rents paid, or for mortgage and interest payments on a land home. A question worth asking might be, “Should you spend $150-250k for a land home, and then pay thousands of dollars in taxes, interest, and insurance, or would you be smart to spend only $10-15k for a shanty home right on the water?” The mooring costs for the shanty should be less than the land home real estate taxes alone.

Another possible usage for the Shanty is a home on the shore, instead of in the water. In the event of a flood, the shanty will simply float up on its spud anchors, and then back down again when the water recedes.

click to enlarge

The 36 foot Shanty offers more room for full time live aboard comfort.

The Shanty’s are a new line of boating products for our Company, and we are interested in establishing new Distributors throughout the country. If you are interested, or know of someone who may be interested, there is no investment required to become an UglyBoat shanty Distributor.

The bottom line is this; now may be the time to move to the water, and live the dream in your own Shanty home!

I’ve been designing and building boats for over 50 years. In all that time, I’ve never been on the water in a boat that is as sweet handling and stable as this one. It is designed to be very safe, easy to assemble, and “bull strong”. Once you make one for yourself, I know you’ll keep it for the rest of your life. It’s that kind of boat, an heirloom. I’m also sure you have been researching other boats before you make your decision. If so, I’m confident that you have found that any boat coming close to this one costs at least twice as much. It’s just the best boat for your buck that you will ever find.

If your plan included living on the shanty full time you may want to make it 16 feet wide instead of 14.

click to enlarge

If you have specific boating needs, get in contact with me and together we can design the boat arrangement to meet your unique requirements. I’m always glad to talk to you by email. Please feel free to contact me for your questions or comments. I’m sure that we will become friends when you assemble your own Shanty. I’m looking forward to that. That’s the fun part of this business for me.

To help you in your final decision making, I can send you sample pieces of the metal sections of marine grade aluminum used in the building of the boat. Once you receive these metal samples, I know that you will be impressed by the strength of the boat that is offered. These boats will be around for 50 years, giving safe enjoyable boating services.

Good luck in your boating adventures in the future. Stay safe - wear your life jacket.

Harold Duffield
https://www.oneuglyboat.com/

Email this page to a friend