Entry #8
TRILOBYTE 16
drawings -
stats - boat - budget
- explanation - bio
Drawings:
Stats:
| Statistics: |
|
Comments: |
| Length: |
15 ft 6 in |
Sheet Dimensions make for Super-quick Build
Time |
| Beam Hull: |
4 ft ½ in |
Extreme: |
4 ft 8 in |
|
| Draft Board Up: |
3 to 6 in |
|
Board Down: |
to 3 ft |
Heeled with Board Extended |
| Displacement @ 3" WL: |
650 lbs |
Same Beam Displacements in a knockdown |
| Displacement @ 6" WL: |
1400 lbs |
| Weight Empty: |
425 lbs |
|
| Cabin Length: |
7 ft 10 in |
|
Width: |
4 ft |
Sleeps Two, Side by Side |
Headroom: |
3 ft 4½ in |
Under Deck, More in Gangway |
Waterline: Upright (6" Draft): |
12 ft |
|
| Heeled (6" Draft): |
14 ft |
Develops ‘V’-Bottom |
| Hull Speed Upright: |
4 Knots |
1.1 12 (Theoretical) |
Heeled: |
4.5 Knots |
1.2 14 (Theoretical) |
| Rowing Speed Steady: |
3+ Knots |
One or Two Persons, Calm Water |
| Sprint: |
4+ Knots |
Two Persons Only |
| Sail Area: |
84 sq ft |
Reportedly 40% More Efficient Than Jib-Headed Sails |
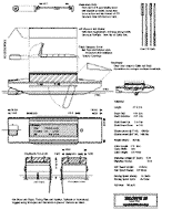
Boat:
Trilobyte is an expedition
cruiser for two. Design priority was to expedite the building
process, making possible ‘build on location’ adventures.
Layout is ‘instant’
(direct on ply panels, no jig). Major components are rectangular
simple fractions of ply sheets, minimizing measurement and cutting,
and generating a ‘self-rectifying’ geometry. ‘Physical
landmarks’ take the place of much layout. The barge hull
has no plan view curvature (constant beam bow to stern) and
the planking is laid outboard of full width panels, eliminating
all longitudinal and edge cuts. The flat barge mid-body profile,
eliminates mid-body layout and cutting. Three of the five thwartships
members are standardized for ‘mass production’ and
the other two stress similarity.
We constructed and rigged her
in three days of spring break, with time left over for sea-trials.
This summer’s trip, from Ft. Benton, MT to New Orleans,
LA, will put her to the test!
Modified crab claw rig rotates
around three axises. To tack, roll it over the top
or around the front of the short mast. No reefing; rolling toward
horizontal directs force upward, converting heeling moment to
lift. When fully horizontal (neutral), it’s a bimini (collecting
and shedding rain aft). Backward sailing is easy! All ‘remote
control’ via running lines from shelter! After about 25
knots in bimini mode it gets loud, but is easy to strike. ‘Clears
away’ in 5 minutes, tops.
The large (4' x 8' x 3'4½+"),
Birdwatcher style cabin affords protection from the
elements while sailing, rowing or drifting. We could mount a
motor, but hate the damn things. Self-rescueing provides security
when going gets rough on the big lakes. Finding camping sites
both practical and permissible is unnecessary, as is each night’s
chore of pitching camp after a day’s rowing. Her flat
cabin sole (vs. sharpie rocker) makes a level sleeping platform.
Large windows, sitting headroom and the ‘Lenihan’
charcoal cabin heater make waiting out foul weather enjoyable.
In warm weather, half the overhead and companionways open up
under the biminied sail. The canted fore and aft decks give
easy access to increased stowage, and allow the inboard tiller
vertical swing-room for a standing helmsperson. Her high ends
lift transoms clear of waves.
Substantial displacement provides
carrying capacity for tools, toys and a month’s provisions.
This allows us to linger or hunker down in style, making optional
the paying of higher ‘small town’ prices and reducing
commuting time and energy. Our 5+ gallon water supply is supplemented
between towns with rain water backed up by filtration.
Cooking is done onboard (vents
open) using chafing gel for fuel or ashore on open or ‘pocketed’
fires (folding pocket stove). The main meal of the day usually
involves some combination of rice, beans and lentils, brought
to a near boil and then slow-cooked in our wide-mouth vacuum
bottle. Results are spiced up with what we carry, catch or find
(a smorgasbord of wild foods are in season!). Snacks are dried
fruits, tortilla creations, left-overs, chocolates and so on.
Treats from Ma and Pa ‘donut holes’ and ‘greasy
spoons’ along the way, though we’ll be saving for
Cajun country.
Our ‘head’ is an
’I. P. Freeley’. A one gallon plastic bucket with
snap-on lid handles gastric emergencies, but we take our ‘constitutionals’
ashore, accompanied by a shovel.
The downside of our ‘big
boat’ approach is portaging. Full-sized pickups handle
Trilobyte, but it’s not easy getting her bulk
up there. We’ll use our break-down, hand dolly system.
We assemble the dolly, lever up the bow or stern and slip it
into place near the center of gravity. Secure with a trucker’s
hitch. We can roll along with good control and at a reasonable
clip on moderate grades. Our ‘endless’ come-along,
with anchor line ‘snatched’ in, gives us 300' of
pull against handy holdfasts (our anchor, if need be). For ‘in-river’
portaging, four 1 x 12 x 8' planks serve as skids, increase
our tires’ footprint or double up as levers.
NOAA and USGS data report 3224
statute river miles from Ft. Benton to New Orleans. We have
90 days. Write off one day out of six to R&R, exploring,
no-go weather, portaging and locking, dodging traffic and obstructions,
grounding, etc.. That means 75 days underway with a round average
of 45 miles made good per day. Let’s say we put in 12
hours per day, with 9 of those rowing in shifts at 3 knots (we
row at 4 knots, together, and sail at 4.5 knots in a fair, brisk
wind, so hope that surpluses offset set-backs from moderate
headwinds). Thus we only need an average current lift of 1.5
knots to meet our goal. Many report doubling their average downstream
of Sioux City, so we’ll bet on that. That lets us luxuriate
in mere 32 mile per day averages ‘til we hit the channel,
and 64 thereafter.
Can’t wait ‘til
school’s out!
Budget:
| Boat: |
- |
Source: |
| Construction (Subtotal $750): |
- |
|
| Glues |
$ 50 |
Local Hardware |
| Fasteners |
$ 25 |
Jamestown Distributers |
| AC Plywood (8 sheets) |
- |
|
1/4" x 4 @ $31/sheet
|
$ 125 |
Local Hardware |
1/2" x 3 @ $33/sheet
|
$ 100 |
Local Hardware |
3/4" x 1 @ $45/sheet
|
$ 45 |
Local Hardware |
| Framing |
$ 100 |
Local Hardware |
| Acrylic |
$ 75 |
Local Hardware |
| Paint |
$ 30 |
Local Hardware |
| Hardware |
$ 50 |
Local Hardware |
| Expendables (gloves, sand paper,etc.) |
$ 50 |
Local Hardware |
| |
- |
|
| Outfit (Subtotal $795): |
- |
|
| Rig |
- |
|
House Wrap Sail
|
$ 50 |
Local Hardware |
Spars
|
$ –- |
Local Scrub Wood |
Hardware
|
$ 35 |
West Marine |
Line
|
$ 15 |
Local Hardware |
| Anchor Gear |
- |
|
Anchors (Two 10lbs)
|
$ 35 |
West Marine |
300' of ½” Nylon
|
$ 120 |
Northern Tool |
| 4'x8' Carpet |
$ 50 |
Local Hardware |
| 4'x8'x5/8" Close Cell Foam |
$ 35 |
Local Hardware |
| Fabric Cover |
$ 75 |
Sailrite |
| Windscreen |
$ 50 |
Sailrite |
| Hail Shelter |
- |
|
1/4" Ply x 1
|
$ 30 |
Local Hardware |
6' Piano Hinge
|
$ 20 |
Local Hardware |
| No-see-um Netting |
$ 25 |
Outdoor Headquarters |
| Life Jackets (x 8) |
$ 60 |
West Marine |
| Fire Extinguisher |
$ 20 |
Local Hardware |
| 1 Gallon Bucket / Sponge |
$ 5 |
Local Hardware |
| Water Cannister |
$ 10 |
Local Hardware |
| Collapsable 2.5 gal Water Cannister |
$ 15 |
Local Hardware |
| Water Filter |
$ 55 |
Campmor |
| Cabin Heater (‘Lenihan’ Homemade) |
$ 25 |
Local Hardware |
| Signal/Anchor Light (All-Round LED) |
$ 20 |
West Marine |
| Solar Battery Charger |
$ 20 |
Real Goods |
| NiMH Batteries (8xAA) |
$ 25 |
Real Goods |
| Navigation (Subtotal $155): |
- |
|
| MT Topo Atlas |
$ 15 |
Local Bookstore |
| Charts |
- |
|
Select USGS Printouts of Impounded Lakes
|
$ 5 |
www.topozone.com |
US Army CoE Mississippi
|
$ 25 |
www.mvr.usace.army |
| GPS |
$ 100 |
Local Hardware |
| Weather Radio |
$ 10 |
Local Hardware |
| Portage Gear (Subtotal $150): |
- |
|
| Dolly |
- |
|
10" Tires
|
$ 25 |
Northern Tool |
Fittings
|
$ 25 |
Loc. HW and Dump |
| Rope Come-Along |
$ 50 |
Local Hardware |
| 4 - 1x12x8' Cedar Planks |
$ 50 |
Local Hardware |
| Crew (Subtotal $2840): |
- |
|
| Fuel |
- |
|
Charcoal
|
$ 10 |
Local Hardware |
Case of Chafing Gel (72 hours)
|
$ 75 |
Local Hardware |
Chafing ‘Stove’
|
$ 5 |
Local Hardware |
| Food ($15/day) |
$1350 |
Current Budget + 50% |
| Entertainment |
$1350 |
Current Budget + 50% |
| Clothing (No-see-um Jackets) |
$ 50 |
Local Vendor |
| Emergency ($100): |
- |
|
| Prepay Cell Phone |
$ 50 |
AT&T |
| 1st Aid Kit |
$ 50 |
Local Vendors |
| Subtotal: |
$4790 |
|
| Emergency Fund (Surpluses Collect Here) |
$ 210 |
$5000 - Subtotal |
| The cell phone is our emergency communication
line... good for the entire trip. |
| Total: |
$5000 |
|
| |
- |
|
| Weight (Figures inflated for conservative
result): |
- |
|
| Boat |
425 lbs |
|
| Rig |
50 lbs |
|
| Boat Gear |
100 lbs |
|
| Crew |
325 lbs |
|
| Personal Gear (25lbs/person) |
50 lbs |
|
| Food (1 month@2lbs/person/day) |
120 lbs |
Probably half that |
| Water |
75 lbs |
Max |
| Books (Navigation, Reading, Drawing Supplies) |
25 lbs |
|
| Musical Instruments |
15 lbs |
|
| Total: |
1175lbs |
225lbs shy of max DWL |
Explanation:
Unless noted, all prices are
for new goods, checked with ‘source’ and rounded
up. We find we can handily beat catalog prices, so no S&H
charges have been budgeted. ‘Local’ is Sitka, Alaska,
so one can do better most places. Savings flow into ‘emergency
fund’ until we reach N’Awlins, then roll-over to
‘entertainment’.
The ‘hail shelter’
is for the rare summer window-smashers. Eight life jackets for
guests and toward positive buoyancy.
The rope come-along is ‘endless’
and has been modified to a ‘snatch’ style. The anchor
rode is oversized to match the come-along’s gypsy. Planks
are levers and skids for in-river slogging.
Our food and entertainment allotments
are 150% of our ‘at-home’ budget. Food covers staples
(coffee and tea, dried rice, lentils and beans, potatoes and
fruits, eggs and cheese, cabbage, onions and garlic, tortillas,
olive oil, brown sugar, condiments and spices and peanut butter).
Entertainment covers beer, wine (boxed), meats and chocolate,
along with eating out (Ma ‘n Pa joints, bakeries and cafes).
Surplus will stay in entertainment for the fleshpots of N’Awlins.
We’ll carry a month’s staples to avoid any local
price spikes.
Perishables will be stored in
a cooler with bags of morning water as coolant.
Water management consists of
a 5 gallon water canister and collapsable back-up, which we’ll
supply from potable sources along the route. The 1.25 lpm water
filter fills in blanks, and should handily last the trip.
The cabin heater is a home-built
‘Lenihan’ charcoal heater, and a 10-lb bag should
last the trip. Cooking will be done on ‘chafing gel’
(jellified alchohol). Thermos cooking limits fuel expenditure
to bringing dried ingredients to near boil. We foresee plenty
of beach fires or picnics around our ‘pocket woodstove’
(permitted where ‘open fires’ aren’t... these
things are great).
Bio:
We (Dave Zeiger, Anke Wagner and Scuppers the dog) live aboard our 31'x8'x13" engineless, junk-rigged, three-masted cat schooner, off-centerboard 'advanced sharpie', Luna (whew!). We like to think she possesses a certain, rough beauty. We're at large among the archipelagoes of SE Alaska. In the long run, we hope to achieve about a 90% subsistant lifestyle. We while away our days drawing (boats from me, plants and animals from Anke), making music (amateurishly) and exploring realms of the senses. In port, we love to 'hang' with our friends. We're hoping to retire soon from the occasional odd job.